Saltar navegación

INFORMACIÓN MUNICIPAL: Traslados y ubicaciones de los Departamentos Municipales

Asuntos Sociales

INFORMACIÓN MUNICIPAL: Traslados y ubicaciones de los Departamentos Municipales

#Asuntos Sociales #Ciudadanía #Desarrollo Local 18/04/2024

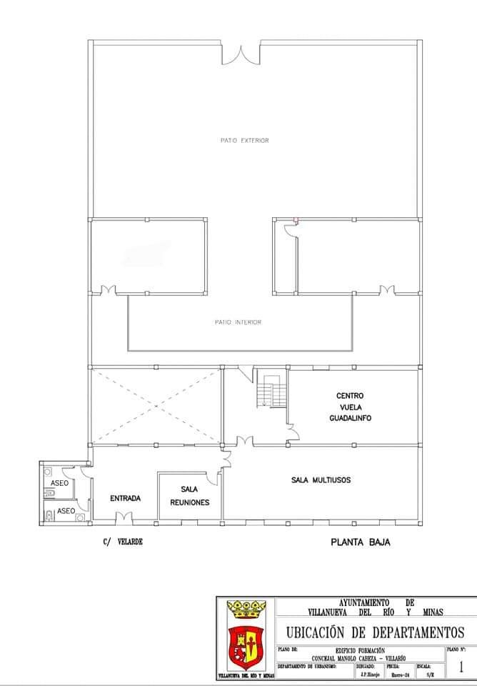
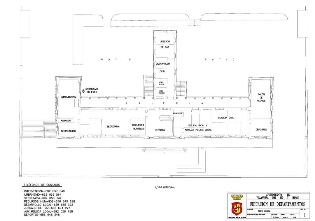
Dentro de las actuaciones de las mejoras en la Gestión Municipal se han realizado cambios en la ubicación de diferentes Departamentos del Ayuntamiento, los trasladamos a la ciudadanía para su conocimiento.
 
También facilitamos los teléfonos de contacto para que sea más cómodo realizar tu consulta. 
 
#TrabajamosJuntos #TrabajandoPorUnFuturoMejor
FOTO N º2
FOTO Nº 3
FOTO Nº 4
FOTO Nº 5